首页 关于我们 新闻资讯 产品中心 工程案例 展厅中心

产品中心

产品种类已覆盖医用钢质门、医用推拉门、室内门、防火门、钢质墙板、钢质空间隔断、金属吊顶等。从接待处到ICU,从化验室到手术室,从病房到行政办公,我们为医院空间环境设计研发多年的产品覆盖各类医院的特定需求..

工程案例

熊猫体育(中国)官方网站-登录入口致力于成为可提供高品质医疗建筑环境整体解决方案的专业公司,经过多年的钢质建材产品生产沉淀与发展,产品种类已覆盖医用钢质门...

更多

产品中心









产品特性
  • 适用于病房、诊疗室。
  • 防止人员对门体的接触,减少感染机率。
  • 带有防夹功能,遇阻反弹功能,提高通行效率。
  • 智能环保,有效降低能源消耗,实现不同区域空气阻隔。
  • 方便老弱病残等行动不便者出入,提高医护人员开门的便利性,减少门体损坏


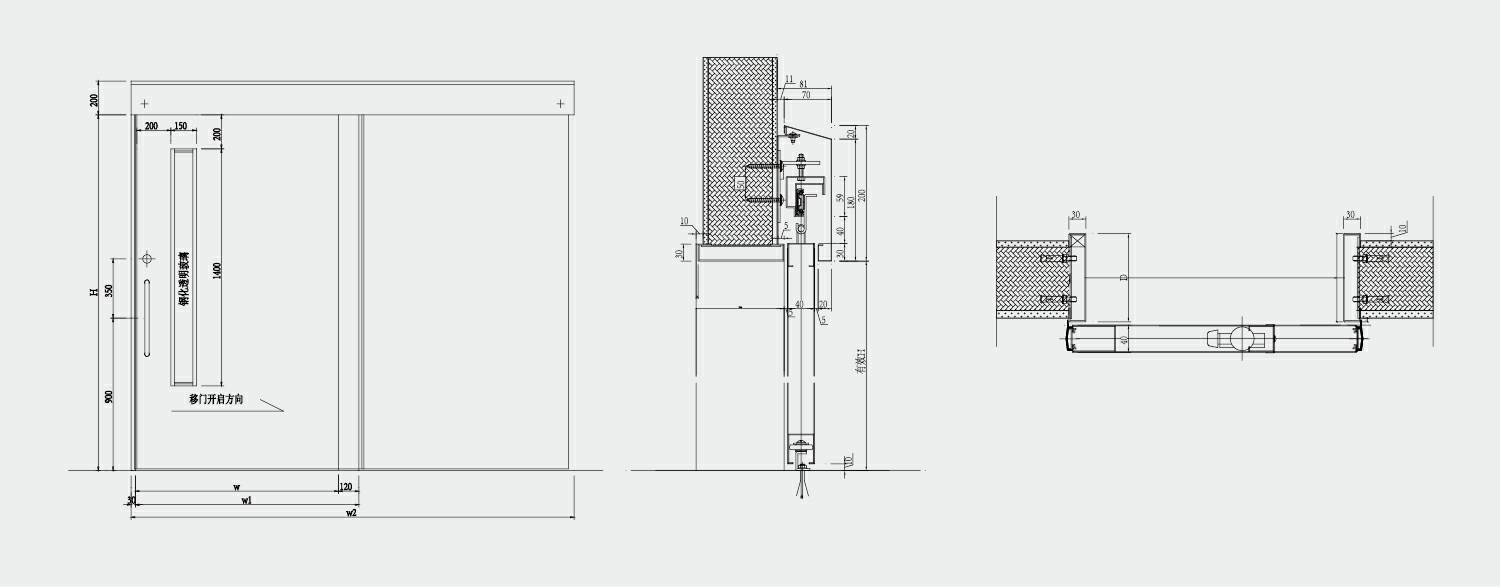
门型参数
  • 门框钢板厚度1.5mm
  • 门扇钢板厚度0.6mm
  • 门扇厚度40~50mm
  • 门扇骨架厚度≥1.0mm
  • 开闭门运动速度250-500mm/s(可调)
  • 手动推力<100N
  • 供电需求220±20%VAC,50/60Hz
  • 控制器可选配驱动感应器
  • 隔声性能Rw=33dB三级(GB/T8485-2008)
  • 防撞性能符合GB/T20909-2007
  • 保温性能传热系数K=2.8W/(m2.k)五级
  • 内部填充聚氨酯发泡材料、蜂窝芯
  • 单开门1250×2500
  • 双开门2500×2500
  • 可选视窗圆形、方形玻璃视窗圆形、方形玻璃视窗
资料下载